top of page

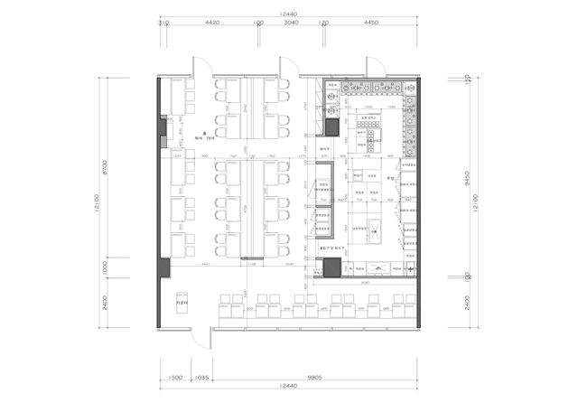
성성칼국수

design Year : 2020
type : restaurant
location : seongnam-si, gyeonggi-do
gross floor area : 149.92 sm
Project Status : built

bottom of page